Uvod
Etažiranje nekretnina / kuće / zgrade / objekta predstavlja ključni pravni i tehnički postupak kojim se jedna nekretnina, najčešće stambena ili poslovna zgrada, dijeli na posebne samostalne jedinice – stanove, poslovne prostore, garaže i druge funkcionalne cjeline. Svaka od tih jedinica dobija vlastiti pravni status i može se samostalno koristiti, prodavati, iznajmljivati ili opterećivati hipotekom.
U praksi, etažiranje je neizostavan korak za sve vlasnike koji žele jasno definisati vlasništvo nad dijelovima objekta, posebno u slučajevima zajedničkog vlasništva ili investitorske gradnje. Bez etažiranja, promet nekretnina je otežan ili čak nemoguć.
Ovaj vodič pruža detaljan pregled procesa etažiranja, pravnih osnova, tehničkih zahtjeva, troškova i prednosti.
Šta je etažiranje nekretnine / kuće / zgrade / objekta
Etažiranje nekretnina / kuće / zgrade / objekta je postupak kojim se:
- jedna građevina dijeli na posebne dijelove (etažne jedinice)
- utvrđuju zajednički dijelovi zgrade
- definišu suvlasnički udjeli
- uspostavlja pravni osnov za upis u zemljišne knjige
Rezultat etažiranja je dokument poznat kao etažni elaborat, koji predstavlja osnov za uknjižbu posebnih dijelova nekretnine.
Kada je potrebno etažiranje
Etažiranje nekretnina / kuće / zgrade / objekta je neophodno u sljedećim situacijama:
- kada više osoba posjeduje jednu nekretninu
- kada se zgrada dijeli na stanove radi prodaje
- kod novogradnje prije prodaje stanova
- kod nasljedstva i diobe imovine
- kod legalizacije objekata sa više jedinica
- kada se želi uspostaviti etažno vlasništvo
Bez etažiranja nije moguće jasno definisati koji dio objekta pripada kojem vlasniku.
Pravna osnova etažiranja
Etažiranje nekretnina / kuće / zgrade / objekta se zasniva na važećim zakonima o:
- vlasništvu i stvarnim pravima
- zemljišnim knjigama
- građenju i prostornom uređenju
U Bosni i Hercegovini, ovaj postupak je regulisan entitetskim zakonima, ali je suština ista – potrebno je dokazati:
- legalnost objekta
- stvarno stanje na terenu
- funkcionalnu cjelinu svake jedinice
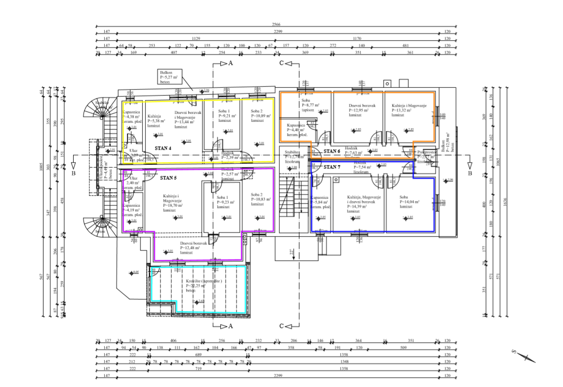
Šta je etažni elaborat
Etažni elaborat nekretnina / kuće / zgrade / objekta je tehničko-pravni dokument koji sadrži:
- grafički prikaz objekta (tlocrti svih etaža)
- označene posebne dijelove (stanovi, poslovni prostori)
- površine svih jedinica
- opis zajedničkih dijelova zgrade
- izračun suvlasničkih udjela
Elaborat mora biti izrađen od strane ovlaštenog stručnjaka (arhitekta ili građevinski inženjer), često u saradnji sa geodetom.
Zaključak
Etažiranje nekretnina / kuće / zgrade / objekta je ključni korak za pravno uređenje vlasništva, posebno u zgradama sa više stanova ili poslovnih prostora. Ovaj postupak omogućava jasno definisanje vlasničkih prava, lakši promet nekretnina i povećanje njihove tržišne vrijednosti.
Iako proces može zahtijevati vrijeme, dokumentaciju i stručnu podršku, njegova dugoročna korist je neupitna.
Nudimo navedenu uslugu, kontaktirajte nas.





