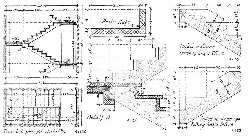
1_MONOLITNA AB STUBIŠTA
Za izradu monolitnog AB stubišta potrebno je napraviti oplatu i postaviti armaturu. Površina betona se samo poravnava jer se obloga izrađuje u završnim građevinskim radovima.
Konstruktivnih sistema monolitnog stubišta ima nekoliko vrsta:
- ako se na rubovima podesta naprave podestne grede, one služe kao oslonci kose ploče
- ako se izostave podestne grede, ploča se na jednoj strani oslanja na čeone stubišne zidove, tzv. dva puta lomljena ploča
- ako je izostavljena samo jedna podestna greda, onda se ploča na jednoj strani oslanja na čeoni stubišni zid a na drugoj strani na podestni nosač .

2_POLUMONTAŽNA AB STUBIŠTA
Kod polumontažnih AB stubišta nosiva konstrukcija se izbetonira na zgradi, a stube se donose gotove i samo montiraju. Za izvedbu nosive konstrukcije potrebno je najprije izraditi oplatu i postaviti armaturu, slično kao kod monolitnog stubišta.
Konsrtuktivni sistemi isti su kao kod monolitne izvedbe, kosa ploča se može oslanjati na:
- podestne nosače
- zidove
- obrazne nosače
Stube se montiraju naknadno na način da se postavljaju preko kose ploče i vežu cementnim mortom i trnovima.

Elementi stuba u obliku slova L, elementi podestnih greda u obliku slova L i nazupčane tetive

Montažna stubišta mogu biti dvo ili trokraka
Ravni AB montažni stubišni krak





